2025年08月28日

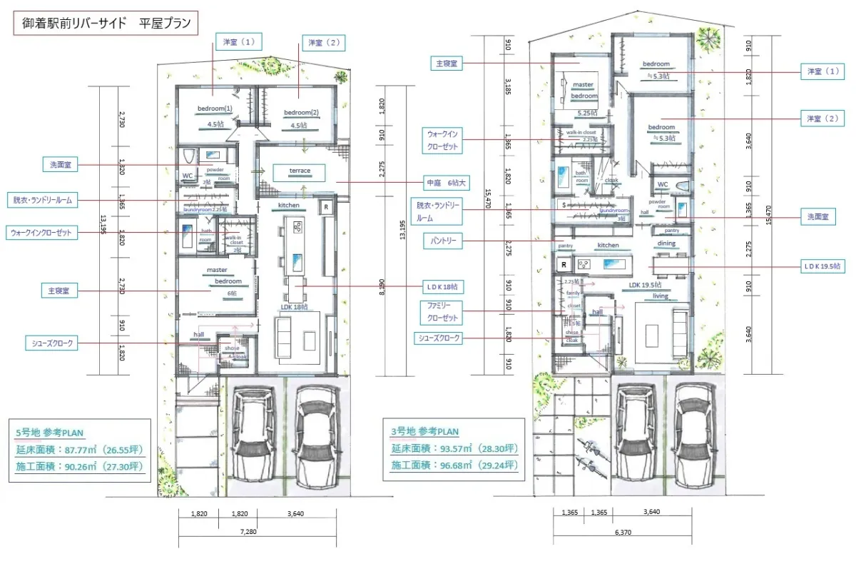
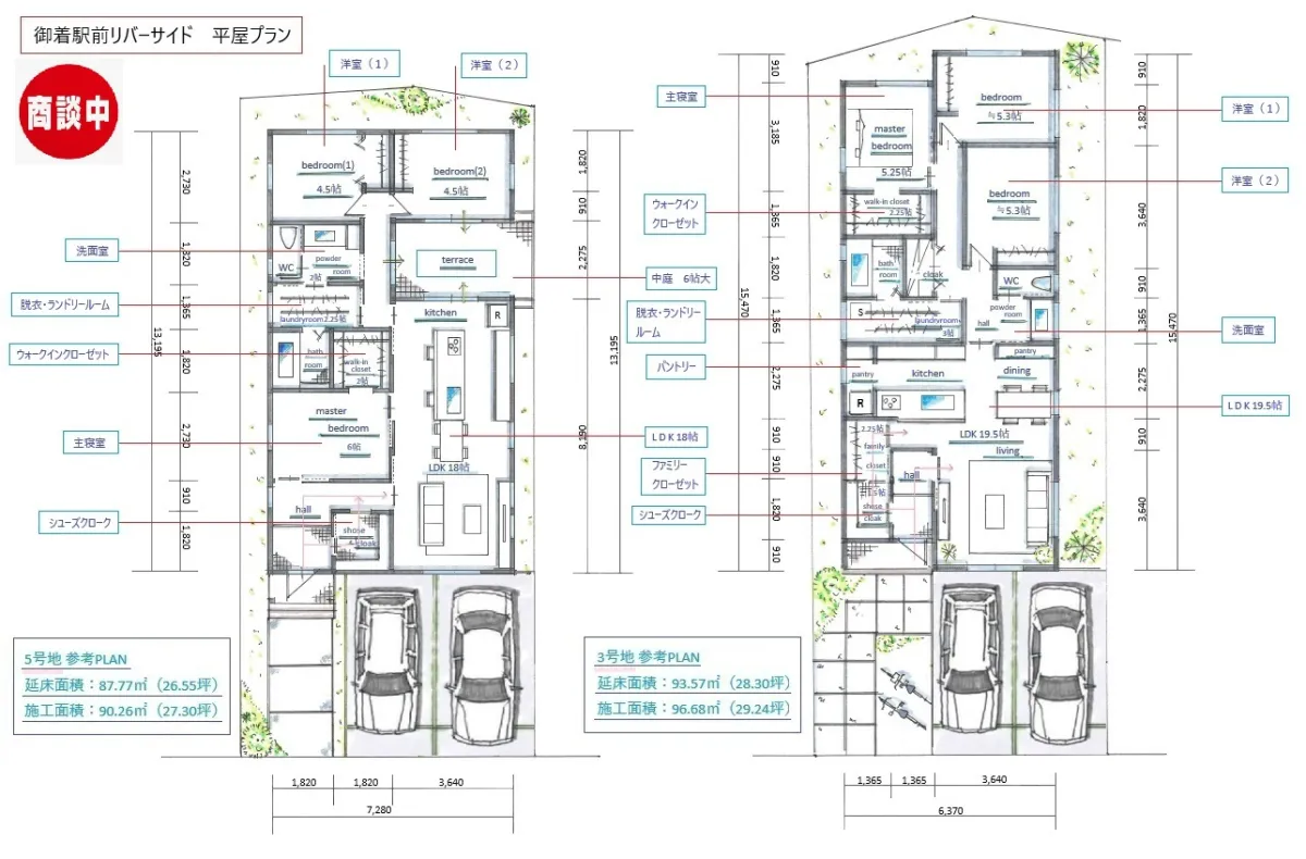
御着駅前リバーサイド

ブログカテゴリ
  • カテゴリーなし
月別アーカイブ

 

 

ほっとほーむの家づくりにご興味を持っていただいた方は、お気軽にご連絡ください。

「FREE相談会の予約をしたいのですが…」

とお電話またはフォームにてご連絡ください

ほっとほーむ本社スタジオ

〒671-0234 兵庫県姫路市御国野町国分寺35-11

営業時間 9:00~18:00
定休日 毎週水、第2・第4火

 

 

FREE相談会 お問い合わせ